Bureau ou chambre d’appoint

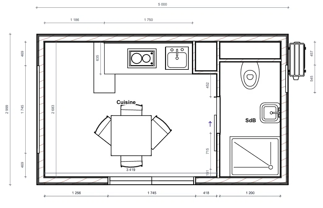
Le studio de jardin 15 m² est un espace compact et fonctionnel, idéal pour un bureau, un atelier ou une chambre indépendante. Fabriqué en bois durable et isolé pour toutes les saisons, il se pose rapidement et s’intègre parfaitement dans votre jardin.

Caractéristiques

  • Surface : 15 m² habitables

  • Ossature : bois certifié PEFC/FSC

  • Murs : isolation haute performance + bardage extérieur

  • Toiture : plate ou traditionnel

  • Menuiseries double vitrage aluminium ou pvc

Les avantages

✔️ Compact et pratique pour un espace de travail ou chambre d’appoint
✔️ Installation rapide et conforme aux normes RE2020
✔️ Fabrication française, matériaux durables

la nouvelle façon d’agrandir son espace de vie simplement et durablement

Notre zone d'intervention

Nous sommes heureux de pouvoir intervenir dans plusieurs départements. Nos services sont disponibles à proximité de chez vous, notamment à Le Mans en Sarthe (72), Alençon en Orne (61), Laval en Mayenne (53), Tours en Indre-et-loire (37), Angers en Maine-et-Loire (49), Chartres en Eure-et-Loir (28), Evreux dans l’Eure (27), Blois en Loir-et-Cher (41),  Rouen en Seine Maritime (76), Saint Lô dans la Manche (50). Cette large couverture géographique nous permet de répondre efficacement à vos besoins tout en vous garantissant un service de qualité. Que vous soyez un particulier ou un professionnel, notre équipe est prête à vous accompagner dans la réalisation de votre projet, avec sérieux et convivialité.

Nous sommes bien évidemment à même d’intervenir dans d’autres départements.