Polyvalent et confortable

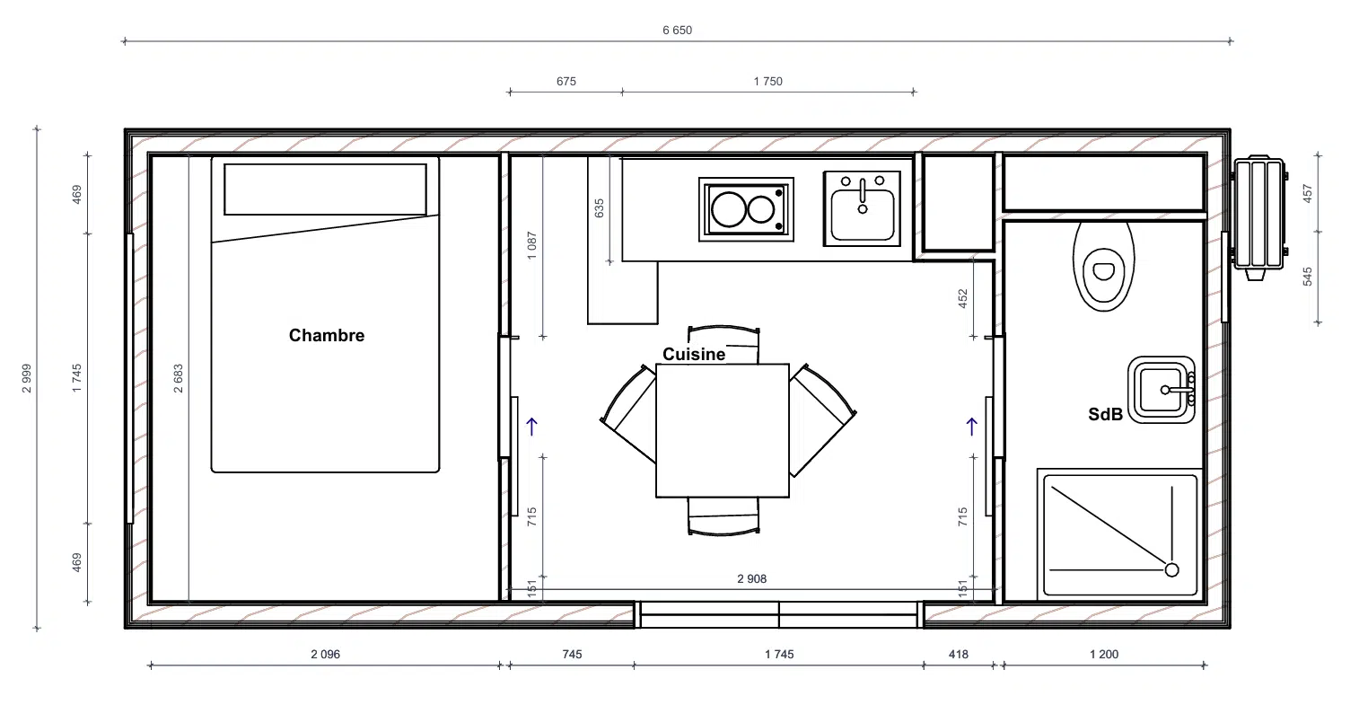
Le studio de jardin 20 m² offre un espace supplémentaire fonctionnel pour un bureau spacieux, une chambre ou un petit logement indépendant. Préfabriqué en bois durable, il s’installe facilement et garantit confort et luminosité.

Caractéristiques

  • Surface : 20 m² habitables
  • Ossature : bois éco-responsable
  • Murs : bardage bois + isolation thermique performante
  • Toiture : plate ou traditionnelle
  • Menuiseries double vitrage bois ou alu

Les avantages

✔️ Polyvalent pour télétravail, atelier ou chambre supplémentaire
✔️ Installation rapide, sans chantier lourd
✔️ Conception durable et respectueuse de l’environnement

la nouvelle façon d’agrandir son espace de vie simplement et durablement

Notre zone d'intervention

Nous sommes heureux de pouvoir intervenir dans plusieurs départements. Nos services sont disponibles à proximité de chez vous, notamment à Le Mans en Sarthe (72), Alençon en Orne (61), Laval en Mayenne (53), Tours en Indre-et-loire (37), Angers en Maine-et-Loire (49), Chartres en Eure-et-Loir (28), Evreux dans l’Eure (27), Blois en Loir-et-Cher (41),  Rouen en Seine Maritime (76), Saint Lô dans la Manche (50). Cette large couverture géographique nous permet de répondre efficacement à vos besoins tout en vous garantissant un service de qualité. Que vous soyez un particulier ou un professionnel, notre équipe est prête à vous accompagner dans la réalisation de votre projet, avec sérieux et convivialité.

Nous sommes bien évidemment à même d’intervenir dans d’autres départements.