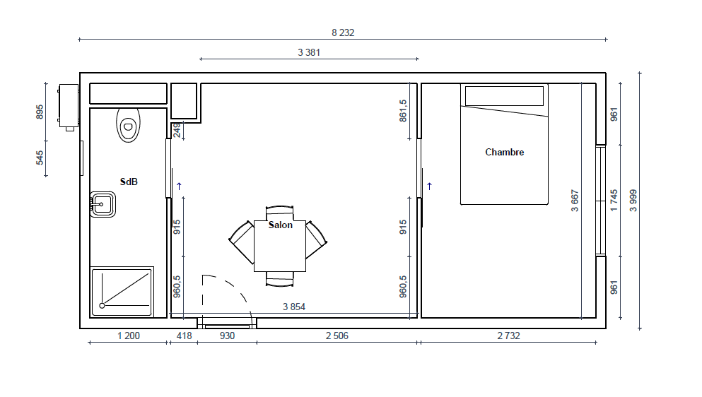
Un espace habitable spacieux et polyvalent

Le studio de jardin bois 32 m² FrenchBox est la solution idéale pour créer un espace indépendant, confortable et moderne.
Parfait comme résidence secondaire, bureau de télétravail, chambre d’amis ou encore logement locatif, ce module associe design contemporain, performance énergétique et fabrication française.

Caractéristiques

  • Surface : 32 m²

  • Ossature : ossature bois certifié PEFC/FSC, durable et écologique.

  • Composition des murs : isolation haute performance + bardage au choix

  • Toiture plate ou traditionnelle selon réglementation

  • Menuiseries : double vitrage aluminium ou pvc, garantissant luminosité et confort thermique.

Les avantages

✅ Une fabrication 100% française
✅ Une construction hors site  pour des délais réduits
✅ Un module écoresponsable et durable
✅ Un budget clair et maîtrisé
✅ Une installation clé en main, sans tracas administratif

la nouvelle façon d’agrandir son espace de vie simplement et durablement

Notre zone d'intervention

Nous sommes heureux de pouvoir intervenir dans plusieurs départements. Nos services sont disponibles à proximité de chez vous, notamment à Le Mans en Sarthe (72), Alençon en Orne (61), Laval en Mayenne (53), Tours en Indre-et-loire (37), Angers en Maine-et-Loire (49), Chartres en Eure-et-Loir (28), Evreux dans l’Eure (27), Blois en Loir-et-Cher (41),  Rouen en Seine Maritime (76), Saint Lô dans la Manche (50). Cette large couverture géographique nous permet de répondre efficacement à vos besoins tout en vous garantissant un service de qualité. Que vous soyez un particulier ou un professionnel, notre équipe est prête à vous accompagner dans la réalisation de votre projet, avec sérieux et convivialité.

Nous sommes bien évidemment à même d’intervenir dans d’autres départements.