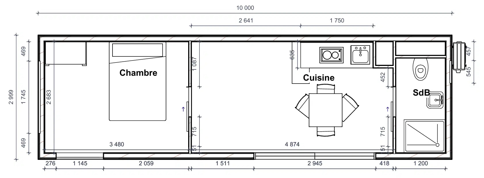
Logement indépendant

Le studio de jardin 40 m² signé FRENCHBOX est conçu comme un véritable logement indépendant. Il offre confort et modularité, idéal pour accueillir une famille, un gîte locatif ou un espace professionnel dans votre jardin.

Caractéristiques

  • Surface : 40 m² habitables
  • Ossature : bois massif et préfabriqué
  • Murs : bardage bois ou composite + isolation haute densité
  • Toiture : plate ou traditionnelle selon la réglementation locale
  • Menuiseries : grandes baies vitrées aluminium premium ou pvc.

Les avantages

✔️ Grand espace de vie confortable et lumineux
✔️ Installation rapide, clé en main
✔️ Respect des normes environnementales et RE2020

la nouvelle façon d’agrandir son espace de vie simplement et durablement

Notre zone d'intervention

Nous sommes heureux de pouvoir intervenir dans plusieurs départements. Nos services sont disponibles à proximité de chez vous, notamment à Le Mans en Sarthe (72), Alençon en Orne (61), Laval en Mayenne (53), Tours en Indre-et-loire (37), Angers en Maine-et-Loire (49), Chartres en Eure-et-Loir (28), Evreux dans l’Eure (27), Blois en Loir-et-Cher (41),  Rouen en Seine Maritime (76), Saint Lô dans la Manche (50). Cette large couverture géographique nous permet de répondre efficacement à vos besoins tout en vous garantissant un service de qualité. Que vous soyez un particulier ou un professionnel, notre équipe est prête à vous accompagner dans la réalisation de votre projet, avec sérieux et convivialité.

Nous sommes bien évidemment à même d’intervenir dans d’autres départements.